L'école de Dotzigen entre en service

13.08.2021

Une centaine d'élèves ont pris possession du nouveau bâtiment scolaire la semaine dernière. La construction en bois convainc par un concept d'espace généreux et flexible - ce qui implique un concept statique bien pensé.

L'école de Dotzigen entre en service

Après un an de travaux, le Oberstufenschulverband Büetigen-Diessbach-Dotzigen a reçu les clés. Une centaine d'élèves cuisinent, bricolent ou font de la musique depuis les vacances scolaires. vacances d'été dans la nouvelle aile de l'école. Le bâtiment remplace le aile spéciale datant de 1975 au même endroit. Celle-ci s'était détériorée en raison de dommages de construction s'était transformé en ruine d'investissement au cours des 25 dernières années. Un Un nouveau bâtiment est donc la meilleure solution à plusieurs égards. Grâce à la nouvel ascenseur et à la passerelle à l'étage, les deux bâtiments scolaires sont désormais accessibles en fauteuil roulant.

Concept d'espace flexible
Les ateliers et les salles de groupe ainsi que la vaste cuisine sont orientés vers l'extérieur. cuisine scolaire sont orientées vers le nord. Cela permet d'une part d'avoir une vue sur la la forêt toute proche, et d'autre part, les salles sont moins chaudes en été. C'est sur le côté sud, plus chaud et avec vue sur les maisons voisines, que se trouvent les zones de détente. zones de desserte et le foyer. La salle polyvalente de près de 240 m² au rez-de-chaussée peut être divisée en trois pièces séparées grâce à deux parois coulissantes. peut être divisée en deux. Cela permet une flexibilité d'utilisation maximale du bâtiment scolaire.

Image salle polyvalente
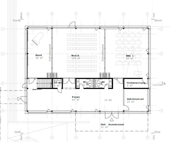
Plan de la salle polyvalente

En haut : photo de la salle polyvalente terminée avec les poutres en bois de hêtre et les cloisons pliantes. En bas, le plan de la salle : Plan de cette salle

Un concept statique bien pensé
La salle polyvalente de près de dix mètres de large est couverte de poutres en bois lamellé-collé. en bois de hêtre. Elles supportent la charge utile prescrite de 3kN (300 kg par mètre carré) pour les bâtiments scolaires. Grâce à une construction habile et un plafond suspendu, il ne reste plus que 96 centimètres des de hauteur, seuls 40 centimètres sont encore visibles. Elles s'intègrent ainsi s'intègrent bien dans l'espace. Une surélévation est également déjà prévue : En cas de besoin ultérieur Le bâtiment peut être facilement agrandi d'un étage en cas de besoin de place.

La porte pliante en verre de sept mètres de large à l'extrémité ouest du bâtiment permet une flexibilité d'utilisation. permet une plus grande flexibilité d'utilisation. Un concert du groupe d'élèves à l'intérieur de la salle peut par exemple être suivi depuis l'escalier devant le bâtiment. peut être suivi.

Image de la façade ouest
Plan de la façade ouest

Ci-dessus : photo de la façade ouest avec la baie vitrée de sept mètres de large et la Passerelle vers l'ancien bâtiment. En bas : Plan de la façade ouest

Coûts de construction
Pour offrir aux élèves des communes associées Büetigen-Diessbach-Dotzigen des conditions optimales pour l'enseignement. les électeurs ont accordé en 2019 un crédit de construction de 4,1 millions d'euros. francs suisses. Aujourd'hui, deux ans plus tard, le bureau d'architectes biennois Leimer Tschanz Architekten AG a réalisé un atterrissage de précision en ce qui concerne les coûts de construction.

Protection des données
Ce site web utilise des composants externes qui peuvent être utilisés pour collecter des données sur votre comportement. Pour en savoir plus, consultez nos informations sur la protection des données.