Construction d'un hôpital entièrement en bois

13.04.2021

Ce qui a longtemps été considéré comme impensable est aujourd'hui une réalité : des bâtiments hospitaliers entièrement en bois. Juste à côté de l'hôpital cantonal de Fribourg, un ancien couvent de l'église catholique a été réaffecté en hôpital psychiatrique et agrandi avec deux nouveaux bâtiments en bois.

Construction d'un hôpital entièrement en bois

Le Réseau fribourgeois de santé mentale Santé mentale (RFSM) est un centre de compétences médicales et psychosociales. Dans traitements ambulatoires et hospitaliers, il prend en charge ses patientes et ses patients. patients dans les trois domaines suivants : enfants et adolescents, adultes et pour les personnes âgées. Dans cette nouvelle clinique, les germanophones habitants du canton de Fribourg qui se rendaient jusqu'à présent à Marsens pour se faire soigner. s'orienter vers Marsens ou le canton de Berne pour le traitement de leurs problèmes. devaient se rendre à Fribourg. Un établissement géré en allemand manquait jusqu'à présent dans le canton. Le site La réaffectation se fera en trois étapes : Tout d'abord, les bâtiments existants ont été ont été rénovés. Les deux bâtiments en bois F et G viennent ensuite agrandir le complexe de bâtiments.

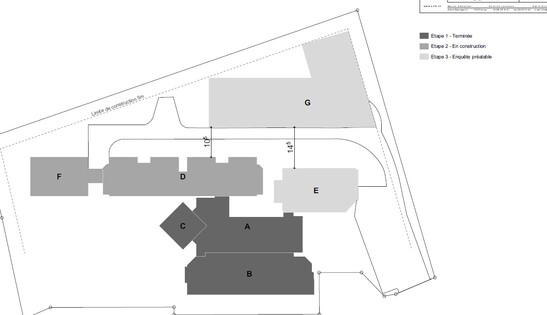
Plan de situation

Plan du Réseau fribourgeois de santé mentale santé mentale (RFSM). Les bâtiments A à E ont été rénovés. Le bâtiment F est est un bâtiment hospitalier en bois, le complexe de bureaux G est presque exclusivement construit en bois suisse. bois suisse est construit. Source : LZA Architekten

Protection incendie/bases pour les hôpitaux construits en bois
Le bois est un matériau de construction sûr. Aussi en ce qui concerne en ce qui concerne la protection contre l'incendie. Parce qu'il en est ainsi, la nouvelle génération de prescriptions de protection incendie autorise BSV 2015 autorisent de nouvelles possibilités pour la construction en bois. Depuis l'introduction de l'actuelle prescriptions de protection incendie, tous les bâtiments peuvent être construits en bois. indépendamment de leur utilisation. En bref : le bois se normalise en tant que matériau de construction sans réglementation particulière. La norme de protection incendie décrit deux concepts standard :

  • Concept de construction : concept de protection incendie avec principalement des mesures de construction. mesures de protection
  • Concept d'installation d'extinction : concept de protection incendie avec des mesures essentiellement techniques. Mesures techniques


Du concept choisi découlent les exigences en matière de construction et d'éléments de construction. Les nouveaux bâtiments G et F ont été construits selon le concept de construction. Pour le bâtiment F, cela signifie que Chaque chambre est un compartiment coupe-feu distinct. Un patient doit être protégé d'un incendie être protégé pendant 60 minutes dans la chambre voisine et de la fumée qu'elle dégage. être protégé. Les éléments de construction porteurs et formant le compartiment coupe-feu doivent être conçus comme une construction encapsulée. doivent être isolés. Cela signifie que les éléments de construction combustibles doivent être recouverts d'un matériau de construction approprié qui ne contribue pas à la propagation du feu. ne contribue pas à l'incendie, comme par exemple les plaques de plâtre fibrées.

Détails

Trois détails du bâtiment F. À gauche : La structure porteuse et les le plafond de l'étage sont construits comme des éléments encapsulés. L'insonorisation est assurée par est assurée par un remblai à liant élastique. Ainsi, il est possible de renoncer complètement au béton. Au milieu : les éléments encapsulés reposent sur une poutre en acier. Celle-ci porte la dalle encapsulée plafond de l'étage. Ainsi, tous les murs extérieurs et intérieurs peuvent être non porteurs. peuvent être réalisées. A droite : La cage d'ascenseur du bâtiment de quatre étages est également une construction en bois. Construction en bois.

Suisse Bois
Le bois est une matière première naturellement renouvelable qui ne nécessite que de l'eau et de l'énergie pour sa fabrication. sa production ne nécessite que de l'énergie solaire et de l'eau. La récolte et la transformation se font avec très peu d'énergie, et le matériau stocke en plus le gaz à effet de serre CO₂. Le bois suisse est encore plus performant : le bois indigène n'est pas transporté. n'est pas transporté sur de longues distances, ce qui réduit l'énergie grise qu'il contient. Le bâtiment bâtiment G a été certifié par le label Bois suisse.

Dans le site Bulletin du bois actuel la transformation RFSM est présentée en détail.


Vue extérieure
Vue intérieure
Protection des données
Ce site web utilise des composants externes qui peuvent être utilisés pour collecter des données sur votre comportement. Pour en savoir plus, consultez nos informations sur la protection des données.