Riggisberg construit un bâtiment scolaire en éléments de bois durables

10.05.2025

Riggisberg mise sur la formation : De nouveaux locaux scolaires en bois sont construits ici : Une construction en éléments de trois étages complète le complexe scolaire Aebnit. Le bâtiment offre des espaces d'apprentissage flexibles pour des formes d'enseignement modernes - avec une réserve d'extension et une installation photovoltaïque. Timbatec a conçu la structure porteuse et fourni des conseils en matière de construction et de physique du bâtiment.

Nouveau bâtiment scolaire Aebnit : des éléments en bois pour l'avenir de l'apprentissage

Situationsskizze Schulareal Zentrumsgemeinde Riggisberg

Esquisse du projet : Freiluft Architekten BSA SWB SIA, Schwarzenburg | Alexander Grünig


La commune de Riggisberg planifie et construit en anticipant : on s'attend à une augmentation du nombre d'élèves dans les années à venir. Cela s'explique notamment par l'activité de construction intense dans la région et par le rôle de Riggisberg en tant que centre régional. Parallèlement, les formes d'enseignement modernes exigent des solutions de locaux plus flexibles. Pour répondre à ces exigences, l'infrastructure scolaire sera agrandie par étapes.


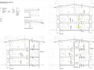
Une construction en bois de trois étages est érigée - la base pour des possibilités d'extension flexibles est posée

La première étape consiste actuellement à ajouter un nouveau bâtiment au complexe scolaire Aebnit. Il s'agit d'un bâtiment en bois de trois étages qui a été érigé en avril 2025. Le rez-de-chaussée, le premier étage et le deuxième étage sont déjà construits de manière à pouvoir accueillir des locaux scolaires à l'avenir. Le troisième étage, qui a été construit en tant que réserve dans le gros œuvre non isolé mais qui n'est pas encore occupé, a également été planifié de manière particulièrement prévoyante. L'unité du 3e étage a été intégrée dans la construction en bois et peut, si nécessaire, être rapidement aménagée en salle de classe supplémentaire et mise en service - il suffit pour cela d'ouvrir des découpes de fenêtres préparées, de poser des fenêtres et d'isoler les murs. L'ascenseur et la cage d'escalier sont déjà terminés jusqu'au dernier étage.

Deux salles de classe seront installées au rez-de-chaussée et au premier étage. Le bâtiment est conçu de manière extrêmement flexible et permet de multiples répartitions de l'espace et, si nécessaire, des modifications et des adaptations. Le toit sera équipé d'une installation photovoltaïque et contribuera ainsi à l'approvisionnement énergétique durable de la commune.


Autres étapes en cours de planification

Le nouveau bâtiment est conçu pour accueillir des élèves pendant 30 ans. Aujourd'hui déjà, deux autres bâtiments scolaires se trouvent sur le site et sont en service depuis 87 et 32 ans respectivement. Ils font eux aussi partie de la stratégie à long terme en matière de locaux scolaires. Le bâtiment scolaire, classé dans l'inventaire des bâtiments à conserver, doit être rénové et transformé. Dans une troisième étape suivra la transformation et la rénovation du bâtiment de l'école secondaire.

© extraits de plans : En plein air Architectes BSA SWB SIA, Schwarzenburg | Alexander Grünig


Participants au projet

Domaine de responsabilitéPorteur
Maître d'ouvrageGemeinde Riggisberg, 3132 Riggisberg
ArchitectureFreiluft Architekten BSA SWB SIA, 3150 Schwarzenburg
Construction en boisRemund Holzbau AG, 3150 Schwarzenburg
Ingénierie du bois, statique, construction et physique du bâtimentTimbatec Holzbauingenieure Schweiz AG, dans les phases SIA 32 à 52

Avec le nouveau bâtiment scolaire Aebnit, Riggisberg fait un pas important en direction d'une infrastructure éducative d'avenir -

#écologique, #flexible et #prévoyante #planifié

Protection des données
Ce site web utilise des composants externes qui peuvent être utilisés pour collecter des données sur votre comportement. Pour en savoir plus, consultez nos informations sur la protection des données.