«HOFWIS» nominated for «The Best 2024»

15.11.2024

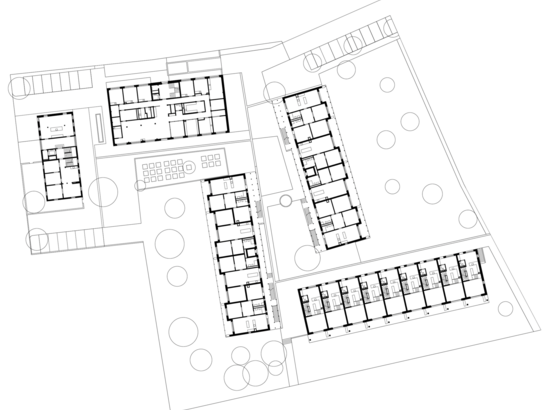
The «Pro Elsau Foundation» built a mixed-age residential development with nine terraced single-family homes, 31 apartments, underground parking and visitor parking. The offer is complemented by cultural and health programs that create a unique living experience in HOFWIS.

«HOFWIS» nominated for «The Best 2024»

Architecture and design awards «The Best 2024» from Hochparterre

The HOFWIS cultural and health center, which was built by the Elsau Foundation, has been nominated in the Architecture category for the Audience Award for «The Best 2024». We are delighted that this extremely well-designed timber architecture has made it onto the selected longlist. Congratulations to everyone involved in the construction.

Project key data

  • HOFWIS residential development with health and cultural center, 8152 Elsau, ZH
  • https://www.hofwis.ch
  • Client: Pro Elsau Foundation
  • Architecture: BDE Architekten GmbH, Winterthur

The project comprises 2 apartment buildings, 9 terraced single-family houses, 1 health center and a library with a multi-purpose room. The pergola, pitched roofs and wooden facades blend in perfectly with the rural surroundings. All four new buildings are constructed entirely in wood from the floor slab upwards. The rental offer was very popular. All residential units are rented out.

Architecture | Sustainable building | Renewable energies

The architecture of the HOFWIS development integrates itself into the central village location by incorporating elements of the existing farmhouse. The health center interprets a stately barn with a brick base and wooden facades, highlighting its importance to the community. Sustainably built, the new buildings combine timber with minimal concrete and steel to conserve resources and ensure long-term efficiency. A large photovoltaic system covers the building's own needs, powers heat pumps, charges electric cars and stores surplus electricity. The buildings meet the requirements of the SIA Energy Efficiency Path 2040.

Pictures ©Jusuf Supuk


Award Night at the Museum für Gestaltung Zurich, 3.12.2024

On December 3, the winners will be honored at the Award Night at the Museum für Gestaltung Zürich.

Organizer

  • Hochparterre AG, publishing house for architecture, planning and design - LINK
  • Company Müssig AG, Amriswil - LINK

#architecture #landscape architecture #design

Privacy notice
This website uses external components that can be used to collect data about your behavior. Read more about this in our privacy policy.